Nos avis clients
Nos avis clients
0
Sous-compromis
Nouveauté

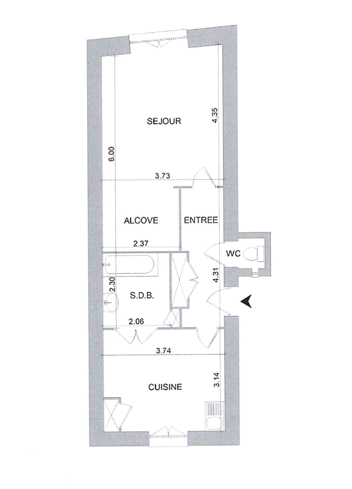
T1 BIS TRAVERSANT DE 43.88M² - FORT POTENTIEL

Lyon (69007)
Réf : 3395
PIERREFEU IMMOBILIER vous propose de découvrir, à seulement quelques minutes à pied du métro Saxe Gambetta (ligne D) et au cœur d’un quartier vivant et recherché, ce T1 bis traversant et lumineux de 43.88m² situé au 2ᵉ étage d’une copropriété de 15 lots avec ascenseur. L’appartement se compose d’une entrée, d’une cuisine indépendante donnant accès à la salle de bains, d’un séjour avec alcôve et de WC séparés. Une cave vient compléter l’ensemble. Des travaux de rénovation sont à prévoir, offrant l’opportunité de repenser l’espace à votre image et de révéler tout le potentiel de ce bien. Sa configuration et son emplacement en font un choix idéal, aussi bien pour une résidence principale que pour un investissement locatif. PIERREFEU IMMOBILIER, le partenaire de vos projets : Vente, Achat, Location, Gestion et Syndic de Copropriété.
Prix du bien 190 000 €
Pièce(s) 1

Caractéristiques du bien

Caractéristiques Valeurs
Code postal 69007
Surface habitable (m²) 43,88 m²
Nombre de pièces 1
Etage 2
Ascenseur OUI
Nb de salle de bains 1
Cave OUI
Exposition none
Année de construction 1946
copropriété OUI
copropriété lot 8
copropriété nb lot 15
copropriété quote part 1 000 €

Infos financières

Caractéristiques Valeurs
Prix de vente 190 000 €
Les honoraires d'agence seront intégralement à la charge du vendeur  
Taxe foncière annuelle 549 €

Bilans énergétiques

DPE GES
Ce bien vous intéresse ?
Fieldset par défaut
Fieldset par défaut
Validation

* Champs obligatoires

Contacter l'agence
Validation
Les informations recueillies sur ce formulaire sont enregistrées dans un fichier informatisé par La Boite Immo agissant comme Sous-traitant du traitement pour la gestion de la clientèle/prospects de l'Agence / du Réseau qui reste Responsable du Traitement de vos Données personnelles. La base légale du traitement repose sur l'intérêt légitime de l'Agence / du Réseau. Elles sont conservées jusqu'à demande de suppression et sont destinées à l'Agence / au Réseau. Conformément à la loi « informatique et libertés », vous disposez des droits d’accès, de rectification, d’effacement, d’opposition, de limitation et de portabilité de vos données. Vous pouvez retirer votre consentement à tout moment en contactant directement l’Agence / Le Réseau. Consultez le site https://cnil.fr/fr pour plus d’informations sur vos droits. Si vous estimez, après avoir contacté l'Agence / le Réseau, que vos droits « Informatique et Libertés » ne sont pas respectés, vous pouvez adresser une réclamation à la CNIL. Nous vous informons de l’existence de la liste d'opposition au démarchage téléphonique « Bloctel », sur laquelle vous pouvez vous inscrire ici : https://www.bloctel.gouv.fr Dans le cadre de la protection des Données personnelles, nous vous invitons à ne pas inscrire de Données sensibles dans le champ de saisie libre.
Ce site est protégé par reCAPTCHA, les Politiques de Confidentialité et les Conditions d'Utilisation de Google s'appliquent.